ООО "Промхиммаш" г. Тамбов

Россия, 392010, г. Тамбов, ул. Монтажников, 10 тел./факс: (4752) 48-15-20, 53-58-64

Главная

Контакты

Руководство

Продукция

Сертификаты

Галерея

 

Аппараты емкостные

Теплообменная аппаратура

Резервуары

Сепараторы

Емкости подземные горизонтальные дренажные

Фильтры жидкостные сетчатые для трубопроводов

Отстойники нефти горизонтальные

Сосуды

Аппараты с перемешивающими устройствами

 

Испарители термосифонные
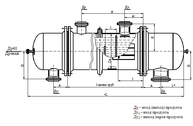
Испарители типа ИНТ и ИКТ исполнения 1

Испарители предназначены для испарения сред в технологических процессах нефтяной, химической, нефтехимической, газовой и других отраслях промышленности и изготавливаются для внутрироссийских и зарубежных поставок.
Испарители типа ИНТ, ИКТ изготавливаются следующих исполнений:
вертикальные с жидким, газообразным, парогазовым или парожидкостным теплоносителем;
вертикальные с паровым теплоносителем.
Испарители типа ИПТ изготавливаются:
горизонтальные с длиной теплообменных труб 1=3000 мм,
горизонтальные с длиной теплообменных труб 1=6000 мм.

В испарителях применяются теплообменные трубы гладкие (Г).
Испарители могут эксплуатироваться в условиях макроклиматических районов с умеренным и тропическим климатом. Климатическое исполнение «У» и «Т», категория изделия 1 по ГОСТ 15150.
Испарители рассчитаны на установку в географических районах с сейсмичностью до 7 баллов по принятой в РФ 12 - ти бальной шкале.

Пример условного обозначения теплообменного аппарата при заказе:

Испаритель термосифонный с неподвижными трубными решетками (ИНТ), исполнения 1, с кожухом диаметром 800 мм, на условное давление в трубах 1,0 МПа, в кожухе 2,5 МПа, исполнения по материалу 3 м, одноходовой по трубам, климатического исполнения (У), с деталями для крепления теплоизоляции:
Испаритель термосифонный
800 ИНТ-1-1,0-2, 5-М1/25Г-3-1-У-И
ТУ 3612.....

Испаритель термосифонный с неподвижными трубными решетками и температурным компенсатором на кожухе (ИКТ), исполнения 2, с кожухом диаметром 1400 мм, на условное давление в трубах и кожухе 1,6 МПа, исполнения по материалу М1, с гладкими теплообменными трубами (Г) диаметром 25 мм, длиной 4 м, одноходовой по тру

трубам, климатического исполнения (Т), без деталей для крепления теплоизоляции:

Испаритель термосифонный

1400 ИКТ-2-1,6-1,6-М1/25Г-4-1-Т
ТУ 3612......
Испаритель
термосифонный с плавающей головкой (ИПТ), с кожухом диаметром 1200 мм, на условное давление в трубах 6,3 МПА, в кожухе 2,5 МПа, исполнения по материалу М1, с гладкими теплообменными трубами (Г) диаметром 25 мм, длиной 6 м, двухходовой по трубам, климатического исполнения (У), с деталями для крепления теплоизоляции (И).
Испаритель термосифонный
1200 ИПТ-6,3-2,5-М1/25Г-6-2-У-И
ТУ 3612......

При заказе аппаратов должен представляться опросный лист.

По требованию потребителя допускается:

  • устанавливать дополнительные штуцера диаметром Dу £ 80 мм, но не более 0,1 D, где D – диаметр аппарата;
  • применять уменьшенный диаметр одного или нескольких штуцеров (увеличение диаметра штуцеров не допускается);
  • устанавливать в аппаратах типа ИНТ, ИКТ отбойник у нижнего штуцера вместо верхнего (в случае входа продукта в межтрубное пространство аппарата снизу).
  • увеличить расстояние между перегородками в трубном пучке, но не более 1000 мм при соответствующем изменении значения среза перегородки;
  • уплотнительную поверхность аппаратных фланцев и фланцев штуцеров выполнять «шип-паз» на Ру £ 4,0 МПа;
  • производить крепление труб в трубных решетках обваркой с развальцовкой (при отсутствии специального указания тип соединения труб с трубными решетками выбирает предприятие-изготовитель);
  • не устанавливать детали для крепления теплоизоляции;
  • устанавливать на горизонтальных аппаратах шарнирное устройство для подвешивания крышек для аппаратов диаметром кожуха 1000, 1200 мм – на давление Ру £ 4,0 МПа.

Основные параметры испарителей термосифонных

Наименование параметров

Значение параметров для испарителей типа

ИНТ

ИКТ

ИПТ

Поверхность теплообмена, м2

40-1240

40-464

Внутренний диаметр кожуха, мм
(из листовой стали)

600;800;1000; 1200; 1400; 1600; 1800; 2000; 2200.

600; 800; 1000; 1200; 1400.

600; 800; 1000; 1200.

Температура греющей и испаряемой сред (Т±5) 0С

от минус 70 до плюс 350

от минус 70
до плюс 450

Условное давление, МПа, не более в трубах для аппаратов диаметром, мм

600-1000

1,0;1,6;2,5; 4,0

1,0; 1,6

1,6; 2,5; 4,0; 6,3

1200

1,0; 1,6; 2,5

1400

-

1600-2000

-

2200

1,0; 1,6

Условное давление, МПа, не более в кожухе для аппаратов диаметром, мм

600-1000

1,0;1,6;2,5; 4,0

1,0; 1,6

1,6;2,5

1200

1,0; 1,6; 2,5

1400

-

1600-2000

-

2200

1,0; 1,6

Длина теплообменных труб, мм для аппаратов диаметром, мм

600-1000

2000;3000;4000

3000;6000

1200-2200

3000;4000

Наружный диаметр и толщина стенки теплообменных труб, мм

25 х 2

25 х 2; 25 х 2,5

Число ходов по трубам

1

2; 4; 6

Схема и шаг размещения теплообменных труб в трубных решетках, мм

Схема –по вершинам равносторонних треугольников.
Шаг – 32.

Тип аппарата

Исполнение  аппарата по материалу

Температурный предел по применению, С

Материалы, применяемые для изготовления сборочных единиц теплообменных аппаратов

кожуха

распределительной камеры

труб

трубной решетки

ИНТ
ИКТ

М1

от минус 30 до плюс 350

Ст3сп   по ГОСТ 380,
ГОСТ 14637
Сталь марки 16ГС по ГОСТ 5520. Трубы-сталь марки 2С по ГОСТ 1050, по ГОСТ 8731гр.Б.

Стали марок 10 и 20
по ГОСТ 1050,
ГОСТ 550 гр. А,,
ГОСТ 8733 гр. В

 Сталь марки 16ГС по ГОСТ 5520 или ГОСТ 8479 гр. IV, ГОСТ 19281

ИПТ

от минус 30 до плюс 450

ИПТ

М4

свыше плюс 300 до плюс 450

Ст3сп   по ГОСТ 380,
ГОСТ 14637
Сталь марки 16ГС по ГОСТ 5520. Трубы-сталь марки 2С по ГОСТ 1050, по ГОСТ 8731гр.Б.

Двухслойная сталь марки 16ГС+08Х13 или Ст3сп+08Х13 по ГОСТ 10885

Сталь марки 15Х5М или  Х8 по ГОСЧТ 550 гр.А

Сталь марки 15Х5М* по ГОСТ 20072,  ГОСТ 7350 гр. М2б, ГОСТ 8479 гр. IV  и технической документации, в утвержденном порядке

ИНТ, ИКТ, ИПТ

М8

от минус 70 до плюс 350

Сталь марки 12Х18Н10Т по ГОСТ 5632  ГОСТ 5632 и ГОСТ 7350 гр. М2б

Сталь марок 08Х18Н10Т, 12Х18Н10Т по ГОСТ 5632, ГОСТ 9941

Сталь марки 12Х18Н10Т по ГОСТ 5632 ГОСТ 7350 (группа М2б) ГОСТ 25054 (группа IV) и технической документации, утвержденной в установленном порядке

ИНТ, ИКТ, ИПТ

М9

от минус 70 до плюс 350

Сталь марки 10Х17Н13М2Т по ГОСТ 5632, по  ГОСТ 7350 гр. М2б

1Сталь марки 10Х17Н13М2Т
по ГОСТ 5632, ГОСТ 9941

Сталь марки 10Х17Н13М2Т по ГОСТ 5632, ГОСТ 7350 (группа М2б) ГОСТ 25054 (группа IV) и технической документации, утвержденной в установленном порядке.

ИНТ, ИНК

М10

от минус 30 до плюс 200

Сталь марки 12Х18Н10Т по ГОСТ 5632, ГОСТ 7350
гр. М2б

Ст 3сп5 по ГОСТ 380, ГОСТ 14637 Сталь марки 16ГС* по ГОСТ 5520

Сталь марки 08Х18Н10Т, 12Х18Н10Т  по ГОСТ5632, ГОСТ 9941.

Сталь марки 08Х22Н6Т по ГОСТ 5632, ГОСТ 7350 (группа М2б) ГОСТ 25054 (группа IV) и технической документации, утвержденной в установленном порядке

М11

Сталь марки 10Х17Н13М2Т по  по ГОСТ 5632 и ГОСТ 7350 гр. М2б

Сталь марки 10Х17Н13М2Т
по ГОСТ 5632, ГОСТ 9941

Сталь марки 10Х17Н13М2Т по ГОСТ 5632, ГОСТ 7350 (группа М2б) ГОСТ 25054 (группа IV) и технической документации, утвержденной в установленном порядке.

                                                                                                                                Продолжение таблицы

Тип аппарата

Исполнение  аппарата по материалу

Температурный предел по применению, С

Материалы, применяемые для изготовления сборочных единиц теплообменных аппаратов

 

кожуха

распределительной камеры

труб

трубной решетки

ИНТ, ИКТ

М17

от минус 60 до плюс 350

Сталь марки 09Г2С по ГОСТ 5520, ГОСТ 19281. Трубы-сталь марок 10Г2 по ГОСТ 8731 гр. В и 09Г2С по технической документации, утвержденной  в установленном порядке

Сталь марки 10Г2С
по ГОСТ 550 (группа А),
ГОСТ 8733 (группа В)

Сталь марок 09Г2С и 10Г2С1по ГОСТ 5520, 09Г2С по ГОСТ 19281и 10Г2 по ГОСТ 4543, ГОСТ  8479 гр. IV

ИПТ

от минус 60 до плюс 450

ИНТ, ИКТ

м23**

от минус 30 до плюс 200

Ст3сп по ГОСТ 380, ГОСТ 14637. Сталь 16ГС по ГОСТ 5520. Трубы-сталь марки 20 по ГОСТ 1050, по ГОСТ 8731 гр. В.

Сталь марки 08Х22Н6Т по ГОСТ 5632 и ГОСТ 7350 гр. М2б

Сталь марки 08Х22Н6Т по ГОСТ 5632 и ГОСТ 9941

Сталь марки 08Х22Н6Т по ГОСТ 5632, ГОСТ 7350 гр.М2б, ГОСТ 25054 гр. IV и технической документации, утвержденной в установленном порядке.

М24**

Сталь марки 08Х21Н6М2Т по ГОСТ 5632 и ГОСТ 7350 гр. М2б

Сталь марки 08Х21Н6М2Т по ГОСТ 5632 и технической документации, утвержденной в установленном порядке.

Сталь марки 08Х21Н6М2Т по ГОСТ 5632, ГОСТ 7350 гр.М2б, ГОСТ 25054 гр. IV и технической документации, утвержденной в установленном порядке.

ИПТ

Б1

от  0 до плюс 450

Двухслойная сталь марки 16ГС+0813 или Ст3сп+08Х13 по ГОСТ 10885

Сталь марки 08Х13  по
ГОСТ 5632 и ГОСТ 9941

Сталь марки 12Х13  по ГОСТ 5632, ГОСТ 7350 гр.М2б, ГОСТ 25054 гр. IV .

Б2

от  минус 30 до плюс 350

Двухслойная сталь марки 16ГС+121Х18Н10Т  или Ст3сп+121Х18Н10Т по ГОСТ 10885

Сталь марки 08Х18Н10Т или 12Х18Н10Т  по
ГОСТ 5632 и ГОСТ 9941

Сталь марки 12Х18Н10Т по ГОСТ 5632, ГОСТ 7350 гр.М2б, ГОСТ 25054 гр. IV и технической документации, утвержденной в установленном порядке.

Б3

Двухслойная сталь марки 16ГС+101Х17Н13М2Т  или Ст3сп+101Х17Н13М2Т  по ГОСТ 10885

Сталь марки 10Х17Н13М2Т по
ГОСТ 5632 и ГОСТ 9941

Сталь марки 10Х17Н13М2Т по ГОСТ 5632, ГОСТ 7350 гр.М2б, ГОСТ 25054 гр. IV и технической документации, утвержденной в установленном порядке.

ИНТ, ИКТ

Б6

от  минус 30 до плюс 200

Ст3сп по ГОСТ 380, ГОСТ 14637. Сталь 16ГС по ГОСТ 5520. Трубы-сталь марки 20 по ГОСТ 1050, по ГОСТ 8731 гр. В.

Двухслойная сталь марки 16ГС+12х18н10т или Ст3сп+12Х18Н10Т
по ГОСТ 10885

Сталь марок 08Х18Н10Т, 12Х18Н10Т по
ГОСТ 5632 и ГОСТ 9941

Сталь марки 12Х18Н10Т по ГОСТ 5632, ГОСТ 7350 гр.М2б, ГОСТ 25054 гр. IV и технической документации, утвержденной в установленном порядке.

Б8

Двухслойная сталь марки 16ГС+10х17н13т или Ст3сп+10Х17Н13М2Т
по ГОСТ 10885

Сталь марки 10Х17Н13М2Т по
ГОСТ 5632 и ГОСТ 9941

Сталь марки 10Х17Н13М2Т по ГОСТ 5632, ГОСТ 7350 гр.М2б, ГОСТ 25054 гр. IV и технической документации, утвержденной в установленном порядке.

* бт³400МПа
** Допускается применять по согласованию с заводом-изготовителем.
Примечания: 1. Допускается изготовлять сборочные единицы из материалов других марок, предусмотренных ОСТ 26-291, по механическим свойствам и коррозийной стойкости не уступающим материалам, указанным в таблице.
2. Все материалы, применяемые для изготовления аппаратов, должны иметь сертификат

Используются технологии uCoz