
|
Подогреватель пароводяной
Подогреватели пароводяные и водоводяные, применяются для подогрева воды в системах отопления и горячего водоснабжения жилых, общественных и промышленных зданий.
Подогреватели изготавливаются в климатических- исполнениях для эксплуатации в районах с умеренным климатом (У) и категорий размещения 3,4 (размещение в закрытых помещениях) по ГОСТ 15150-69.
Пример условного обозначения при заказе:
Подогреватель пароводяной (ПП), с диаметром кожуха 630 мм, с теплообменными трубами длиной 3 м, 2-х ходовой по труб
трубному пространству, с деталями для крепления тепловой изоляции.
Подогреватель 630 ПП – 3 –2 И
ТУ 26-02-1163-95
Подогреватель водоводяной с неподвижными трубными решетками (ПВН), с диаметром кожуха 168 мм, с теплообменными трубами длиной 4 м, односекционный.
Подогреватель 168 ПВН-4-1
ТУ 26-02-1163-95
Подогреватель водоводяной с компенсатором на кожухе (ПВК), диаметром кожуха 273 мм, с теплообменными трубами длиной 2 м, количество секций подогревателя – 4.
Подогреватель 273 ПВК-2-4
ТУ 26-02-1163-95
Требования к оформлению чертежа (эскиза)
Чертеж (эскиз) составляется в случае принятия конструктивных отличий.
Чертеж (эскиз) должен содержать:
эскиз аппарата, выполненный сплошными тонкими линиями, с основными габаритными и присоединительными размерами;
план расположения штуцеров, люка, опор, строповых устройств (для аппаратов типа 2 и 3), накладок под площадки обслуживания (в случае отступления по размещению от рисунков по каталогу);
измененные по условным проходам штуцеры, дополнительные штуцеры и накладки должны изображаться сплошными основными линиями;
таблицу штуцеров с отражением обозначения штуцеров, назначения, условного прохода и условного давления;
технические требования.
Технические требования должны содержать условное обозначение аппарата согласно каталога ТУ, перечень конструктивных отличий, необходимость термообработки для сред, вызывающих коррозийное растрескивание, основную надпись по ГОСТ 2. 104.
В основной надписи указываются обозначение чертежа (эскиза), обозначение аппарата по технологической схеме и масса аппарата.
Материалы, применяемые для изготовления подогревателей:
-
кожух, камера Ст3 сп ГОСТ 380-88
-
фланцы сталь 20 ГОСТ 1050-88
-
трубные решетки сталь 16ГС ГОСТ 5520-79
-
трубы теплообменные Æ 20х2 мм латунь ЛОМШ 70-1 ГОСТ 21646-76
Все материалы, применяемые для изготовления аппаратов, должны иметь сертификаты.
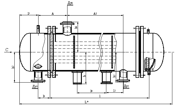
Основные размеры пароводяных подогревателей
Диаметр кожуха, мм |
Длина труб |
Число ходов по трубам |
L ±10 |
l0±10 |
l1±3 |
l2±5 |
l3±3 |
h±5 |
h1±5 |
h2±5 |
h3±5 |
Dу 1 |
Dу 2 |
Dу 3 |
0 |
А±10 |
А1±5 |
Поверхность теплообмена м2±2% |
наруж |
внутр |
325 |
- |
2000
3000 |
2
4 |
2820
3820 |
1100
2000 |
222 |
300 |
250 |
290 |
293 |
293 |
340 |
100 |
50 |
100 |
250 |
556 |
1300
2300 |
8,7
13,1
11,3 |
426 |
- |
2000
3000 |
2
4 |
2910
3910 |
1100
2000 |
256 |
250
300 |
298
285 |
351 |
413 |
348 |
370
385 |
150 |
50 |
125
100 |
292
300 |
562 |
1300
2300 |
16,1
24,1
21,8 |
480 |
- |
2000
3000 |
2
4 |
3025
4025
4000 |
1000
2000 |
315 |
250
300 |
325
300 |
426 |
440 |
375 |
417
405 |
150 |
50 |
150
100 |
330
325 |
605 |
1300
2300 |
23,3
35,0
32,4 |
530 |
500 |
2000
3000 |
2
4 |
3065
4035
4020 |
1000
2000 |
330 |
250
300 |
367
336
324 |
471 |
477 |
420 |
440
415 |
200 |
80 |
200
150
125 |
355
345 |
607 |
1300
2300 |
29,6
44,4
41,4 |
630 |
600 |
2000
3000 |
2
4 |
3060
4060
4030 |
1000
2000 |
296 |
250
300 |
468
442
415 |
525 |
526 |
500 |
516
480 |
250
200
250 |
80 |
200
150 |
440
405 |
665 |
1300
2300 |
45,2
67,8
64,0 |
720 |
700 |
2000
3000 |
2
4 |
3165
4165
4140 |
950
1900 |
328 |
250
300 |
468
442
415 |
570 |
530 |
556 |
560
555 |
300
250 |
125 |
250
200 |
460
465 |
745 |
1100
2100 |
61,2
91,9
87,7 |
820 |
800 |
2000
3000 |
2
4 |
3305
4285
4260 |
850
1800 |
402
408 |
300 |
492
467
450 |
612 |
620 |
606 |
605
600 |
350
300 |
125 |
300
250
200 |
510
515 |
800 |
1100
2100 |
82,8
124,3
119,0 |

|