
|
Сепараторы нефтегазовые
Сепараторы нефтегазовые (в дальнейшем сепараторы), предназначены для дегазации непенистой нефти и очистки попутного газа, применяемые в установках сбора и подготовки продукции нефтяных месторождений для эксплуатации в макроклиматических районах II5 и II4 по ГОСТ 16350 в условиях умеренного и умеренно холодного климата по ГОСТ 15150 с температурой воздуха при эксплуатации:
для умеренного климата – от + 400 С до минус 400 С;
для умеренно-холодного климата – от + 400 С до минус 600 С.
Сепараторы предназначены для эксплуатации в районах с сейсмичностью до 6 баллов включительно по двенадцати бальной шкале.
Климатическое исполнение сепараторов У и УХЛ категории размещения 1 по ГОСТ 15150 с установкой на открытом воздухе.
По конструкции сепараторы подразделяются на следующие типы:
Тип I – применяются в компоновке с узлами предварительного отбора газа (депульсаторами);
Тип I-П - применяется в компоновке с узлами предварительного отбора газа с пеногасящей насадкой;
Тип II – применяются без узлов предварительного отбора газа;
Тип II-П – применяется без узлов предварительного отбора газа, с пеногасящей насадкой.
В зависимости от условий работы сепараторы изготавливаются с термообработкой и без термообработки, с устройствами и без устройств для крепления теплоизоляции.
При заказе сепаратора с термообработкой заказчик должен представить схему расположения накладок для крепления площадок обслуживания.
Уплотнительная поверхность фланца штуцеров оговаривается при заказе сепараторов.
По требованию заказчика и согласованию с проектной организацией разрешается изменение конструкции сепаратора в части установки дополнительных внутренних устройств и изменения, расположения штуцеров под конкретный технологический процесс.
Примеры условного обозначения сепараторов при заказе и других документах:
Сепаратор типа I на расчетное давление 1,6 МПа, в скобках рабочее давление 1,4 МПа, с внутренним диаметром 1600 мм, материального исполнения 1:
Сепаратор НГС-1-1, 6 (1,4) – 1600-1
ТУ 3683-015-00220322-99.
Тот же с пеногасящей насадкой (П):
Сепаратор НГС-1-П-1, 6 (1,4) – 1600-1
ТУ 3683-015-00220322-99.
Тот же материального исполнения 2:
Сепаратор НГС-1-П-1, 6 (1,4) – 1600-2
ТУ 3683-015-00220322-99.
Тот же с термообработкой (Т):
Сепаратор НГС-1-П-1, 6 (1,4) – 1600-2-Т
ТУ 3683-015-00220322-99.
Тот же с устройствами для крепления теплоизоляции (И):
Сепаратор НГС-1-П-1, 6 (1,4) – 1600-2-Т-И
ТУ 3683-015-00220322-99.
Сепаратор типа II на расчетное давление 1,6 МПа, с скобках рабочее давление 1,4 МПа, с внутренним диаметром 1600 мм, материального исполнения 1:
Сепаратор НГС-1-1, 6 (1,4) – 1600-1
ТУ 3683-015-00220322-99.
Тот же с пеногасящей насадкой (П):
Сепаратор НГС-1-П-1, 6 (1,4) – 1600-1
ТУ 3683-015-00220322-99.
Тот же материального исполнения 2:
Сепаратор НГС-1-П-1, 6 (1,4) – 1600-2
ТУ 3683-015-00220322-99.
Тот же с термообработкой (Т):
Сепаратор НГС-1-П-1, 6 (1,4) – 1600-2-Т
ТУ 3683-015-00220322-99.
Тот же с устройствами для крепления теплоизоляции (И):
Сепаратор НГС-1-П-1, 6 (1,4) – 1600-2-Т-И
ТУ 3683-015-00220322-99.
Все требования настоящих ТУ являются обязательными.
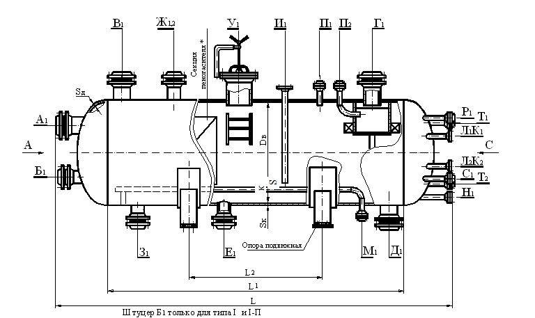
Сепаратор нефтегазовый типа I, I-П, II, II-П


Параметры и размеры аппаратов
Шифр |
Объем, м3 |
Давление условное,
МПа |
H |
h |
Кол-во каплеуловителей П |
Дв |
Sk |
Sd |
L |
L1 |
L2 |
Объемная
производительность |
аппарата |
|
по нефти, м3/ч |
по газу |
НГС 0,6-1200 |
6,3 |
0,6 |
2173 |
818 |
8 |
1200 |
8 |
6511 |
5400 |
3000 |
20+100 |
20700 |
НГС 1,0-1200 |
1,0 |
2173 |
818 |
8 |
6511 |
23300 |
НГС 1,6-1200 |
1,6 |
2177 |
820 |
10 |
6545 |
31400 |
НГС 2,5-1200 |
2,5 |
2181 |
822 |
12 |
6567 |
39000 |
НГС 4,0-1200 |
4,0 |
2281 |
828 |
18 |
6604 |
55000 |
НГС 6,3-1200 |
6,3 |
2428 |
838 |
16 |
25 |
6758 |
74900 |
НГС 0,6-1600 |
12,5 |
0,6 |
2743 |
1018 |
1600 |
8 |
8190 |
6800 |
4300 |
45+225 |
41400 |
НГС 1,0-1600 |
1,0 |
2743 |
1018 |
8 |
8190 |
46700 |
НГС 1,6-1600 |
1,6 |
2751 |
1022 |
12 |
8220 |
62900 |
НГС 2,5-1600 |
2,5 |
2759 |
1026 |
16 |
8221 |
78000 |
НГС 4,0-1600 |
4,0 |
2891 |
1032 |
22 |
8361 |
110000 |
НГС 6,3-1600 |
6,3 |
2842 |
1042 |
32 |
8417 |
149500 |
НГС 0,6-2000 |
25 |
0,6 |
2893 |
1210 |
24 |
2000 |
8 |
10101 |
8500 |
500 |
86+430 |
62200 |
НГС 1,0-2000 |
1,0 |
2897 |
1212 |
10 |
10104 |
70000 |
НГС 1,6-2000 |
1,6 |
2901 |
1214 |
12 |
10133 |
94400 |
НГС 2,5-2000 |
2,5 |
2913 |
1220 |
18 |
10211 |
117200 |
НГС 4,0-2400 |
4,0 |
3013 |
1227 |
25 |
10320 |
165000 |
НГС 0,6-2400 |
50 |
0,6 |
3545 |
1420 |
32 |
2400 |
8 |
12889 |
11000 |
6000 |
160+800 |
82900 |
НГС 1,0-2400 |
1,0 |
3547 |
1420 |
10 |
12893 |
93500 |
НГС 1,6-2400 |
1,6 |
3555 |
1424 |
14 |
12944 |
125500 |
НГС 2,5-2400 |
2,5 |
3571 |
1432 |
20 |
12964 |
156300 |
НГС 4,0-2400 |
4,0 |
3687 |
1440 |
30 |
13128 |
220000 |
НГС 0,6-3000 |
100 |
0,6 |
3909 |
1726 |
48 |
3000 |
10 |
15215 |
13000 |
8000 |
300+1500 |
124000 |
НГС 1,0-3000 |
1,0 |
3917 |
1730 |
12 |
15229 |
140000 |
НГС 1,6-3000 |
1,6 |
3931 |
1738 |
18 |
15241 |
188000 |
НГС 2,5-3000 |
2,5 |
3945 |
1745 |
25 |
15320 |
234000 |
НГС 4,0-3000 |
4,0 |
4055 |
1760 |
40 |
15515 |
33000 |
НГС 0,6-3400 |
150 |
0,6 |
4306 |
1928 |
64 |
3400 |
12 |
17770 |
15300 |
9000 |
450+2250 |
165000 |
НГС 1,0-3400 |
1,0 |
4312 |
1927 |
14 |
17774 |
187000 |
НГС 1,6-3400 |
1,6 |
4328 |
1933 |
20 |
17826 |
251000 |
НГС 2,5-3400 |
2,5 |
4344 |
1941 |
28 |
17872 |
312000 |
НГС 4,0-3400 |
4,0 |
4458 |
1963 |
50 |
18061 |
440000 |
|