ООО "Промхиммаш" г. Тамбов

Россия, 392010, г. Тамбов, ул. Монтажников, 10 тел./факс: (4752) 48-15-20, 53-58-64

Главная

Контакты

Руководство

Продукция

Сертификаты

Галерея

 

Аппараты емкостные

Теплообменная аппаратура

Резервуары

Сепараторы

Емкости подземные горизонтальные дренажные

Фильтры жидкостные сетчатые для трубопроводов

Отстойники нефти горизонтальные

Сосуды

Аппараты с перемешивающими устройствами

 

Сепараторы нефтегазовые со сбросом воды

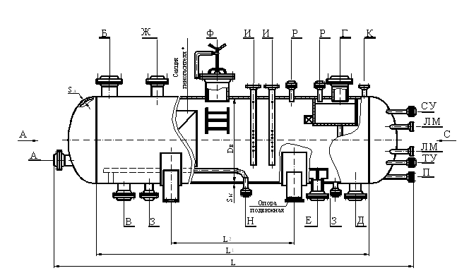
Наименование – сепараторы нефтегазовые со сбросом воды (в дальнейшем сепараторы).
Сепараторы входят в состав установок сбора и подготовки нефтяных месторождений.
Сепараторы могут эксплуатироваться в условиях умеренного климатического района со средней температурой самой холодной пятидневки не ниже минус 30С, холодного климатического района – не ниже минус 60С.

Климатическое исполнение – У и УХЛ категория размещения – I по ГОСТ 15150-69.
Допустимая сейсмичность района установки сепараторов не более 6 баллов по СНиП II-7-81.
Район территорий по скоростным напорам ветра не регламентируется.

Технические требования.

Сепараторы представляют собой горизонтальные аппараты, снабженные технологическими штуцерами, перегородками из просечно-вытяжных листов, пеногасящей насадкой из секций Л–образных пластин, переливной перегородкой, струйными каплеотбойниками для очистки газа.

Сепараторы должны быть разработаны следующих типов:

тип I – для применения в компоновке с депульсаторами по ГП 868.01.000 ВО (при наличии пульсации потока) без пеногасящей насадки;
тип I - П – для применения в компановке с депульсаторами по ГП 868.01.000 ВО с пеногасящей насадкой;
тип 2 – для применения без депульсаторов без пеногасящей насадки;
тип 2- П – для применения без депульсаторов с пеногасящей насадкой.
Сепараторы должны соответствовать требованиям ОСТ 26-291-87.
Сепараторы поставляются на место монтажа в собранном виде. Отдельно поставляются депульсаторы частями, вписывающимися в габариты погрузки железнодорожного транспорта.
Сепараторы при необходимости подлежат теплоизоляции от теплопотерь.
Покрытие должно соответствовать VII классу по ГОСТ 9.032-74 и условиям эксплуатации ХЛI (6) по ГОСТ 9.104-79.
Основные технические параметры сепараторов должны соответствовать указанным в таблице.
Производительность по нефти (жидкости) указана в диапазоне обеспечивающем время пребывания ее в аппарате от 15 до 40 минут, при обводненности от 30 до 90%.

Сепаратор нефтегазовый ТИП 2, 2 - П

 

Используются технологии uCoz