ООО "Промхиммаш" г. Тамбов

Россия, 392010, г. Тамбов, ул. Монтажников, 10 тел./факс: (4752) 48-15-20, 53-58-64

Главная

Контакты

Руководство

Продукция

Сертификаты

Галерея

 

Аппараты емкостные

Теплообменная аппаратура

Резервуары

Сепараторы

Емкости подземные горизонтальные дренажные

Фильтры жидкостные сетчатые для трубопроводов

Отстойники нефти горизонтальные

Сосуды

Аппараты с перемешивающими устройствами

 

Теплообменники типа ТТМ

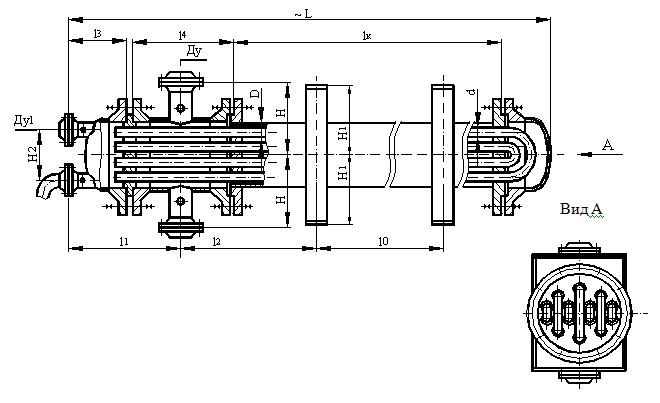
Разборные многопоточные теплообменники труба в трубе ТТМ, в отличие от однопоточных предназначены для относительно больших расходов рабочих и сред (в случае жидких сред: от 10 до 200 т/ч в трубном пространстве и от 10 до 300 т/ч в кольцевом пространстве). Изготавливаются ТТМ5, ТТМ7, ТТМ12, ТТМ22, ТМ31.

Многопоточные теплообменники могут применяться для процессов конвективного теплообмена «жидкость-жидкость » , «газ-газ» и «жидкость-газ», а также для процессов теплообмена с частичной конденсацией или испарением рабочих сред.

Типоразмеры со средним кольцевым каналом (d/D = 48/89 и 57/108 мм) выполняются с гладкими теплообменными трубами. Для грязных сред предпочтительными являются аппараты с трубами 57/108 мм.

Конструкцией многопоточных разборных теплообменников предусмотрена возможность температурных удлинений теплообменных труб. Возможность температурных удлинений кожуховых труб конструкцией ограничена, поэтому перепад температур входа и выхода среды, проходящей через кольцевое пространство одного аппарата, не должно превышать 1500 С.

Конструкция разборных многопоточных теплообменников обеспечивает возможность выемки теплообменных труб для их замены или механической очистки наружной поверхности от загрязнения.

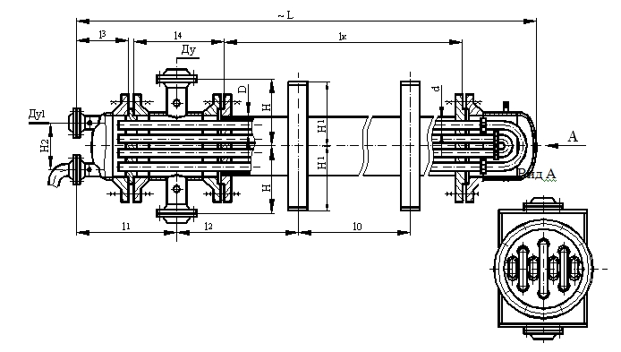
При необходимости регулярной механической очистки внутренней поверхности теплообменных труб (без удаления) выбираются аппараты со съемными двойниками на теплообменных трубах, то есть аппараты исполнения 2 и следовательно, меньших типоразмеров (ТТМ5, ТТМ7).

Теплообменник труба в трубе многопоточный

Исполнение 1- с приварными двойниками

Теплообменник труба в трубе многопоточный ТТМ
Исполнение 2 – с разъемными двойниками

 

Пример компоновки элементов теплообменника труба в трубе
многопоточного ТТМ в блок

 

Используются технологии uCoz