ООО "Промхиммаш" г. Тамбов

Россия, 392010, г. Тамбов, ул. Монтажников, 10 тел./факс: (4752) 48-15-20, 53-58-64

Главная

Контакты

Руководство

Продукция

Сертификаты

Галерея

 

Аппараты емкостные

Теплообменная аппаратура

Резервуары

Сепараторы

Емкости подземные горизонтальные дренажные

Фильтры жидкостные сетчатые для трубопроводов

Отстойники нефти горизонтальные

Сосуды

Аппараты с перемешивающими устройствами

 

Теплообменники типа ТТОР

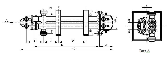
Разборные однопоточные теплообменники труба в трубе ТТОР предназначены для загрязненных и склонных к значительным отложениям рабочих сред, а также для сред, несущих взвеси, то есть для таких технологических условий, когда не допускается разделение рабочей среды на параллельные потоки.

Аппараты предназначены для применения в различных очистных установках, сооружаемых с целью охраны окружающей среды, в том числе на установках обработки осадков сточных вод, в установках сжигания нефтешлама и для аналогичных условий работы в других областях промышленности при расходах жидкостей в кольцевом и трубном пространствах от 2 до 60 т/ч.

Конструкцией аппаратов обеспечена возможность регулярной механической очистки внутренней поверхности теплообменных труб от загрязнений, а также возможность выемки теплообменных труб для их замены или механической очистки наружной поверхности.Более загрязненная среда одним потоком проходит внутри теплообменных труб, совершая при этом четыре хода по трубному пространству. Менее загрязненная среда противотоком проходит снаружи теплообменных труб, совершая также четыре хода по кольцевому пространству.

Допускается выполнение аппарата двухходовым и следовательно, двухпоточным по кольцевому пространству для тех случаев, когда то обусловлено условиями теплообмена (снаружи теплообменных труб- процесс теплообмена с испарением или конденсацией). Например, при использовании аппарата в качестве парового подогревателя загрязненного продукта.

Конструкцией аппаратов предусмотрена возможность свободных температурных удлинении теплообменных труб. Возможность температурных удлинении кожуховых труб конструкцией однопоточных четырех ходовых по кольцевому пространству аппаратов ограничена, поэтому перепад температур входа и выхода среды, проходящей через кольцевое пространство аппарата, не должен превышать 1500 С.

 

Основные размеры теплообменников ТТОР

         

Условное обозначение группы теплообменников

Сортамент труб

Длина кожуховых труб

Длина аппарата
»L

Диаметр камеры
Дв

Ду

Н

Н1

l0

l1

l2

l3

t

теплообменных

кожуховых

ТТОР 89/133-1,6/1,6

89х5

133х5

4500
6000
9000

5410
6910
9910

600

80

860

425

3000
3000
6000

500

730
1695
1695

400

255

ТТОР 89/133-4,0/1,6

4500
6000
9000

5420
6920
9920

3000
3000
6000

550

730
1645
1645

ТТОР 89/133-4,0/4,0

133х6

4500
6000
9000

5420
6920
9920

3000
3000
6000

560

730
1630
1630

ТТОР 89/159-1,6/1,6

159х5

4500
6000
9000

5470
6970
9970

100

3000
3000
6000

560

730
1685
1685

ТТОР 89/159-4,0/1,6

4500
6000
9000

5480
6980
9980

3000
3000
6000

620

730
1630
1630

ТТОР 89/159-4,0/4,0

159х6

4500
6000
9000

5480
6980
9980

3000
3000
6000

620

730
1625
1625

ТТОР 108/159-1,6/1,6

108х5

159х5

4500
6000
9000

5480
6980
9980

600

100

860

425

3000
3000
6000

600

730
1685
1685

400

255

ТТОР 108/159-4,0/1,6

108х6

4500
6000
9000

5515
7015
10015

3000
3000
6000

640

730
1630
1630

ТТОР 108/159-4,0/4,0

159х6

4500
6000
9000

5515
7015
10015

3000
3000
6000

660

730
1625
1625

ТТОР 133/219-1,6/1,6

133х5

219х7

6000
9000

7250
10250

800

150

1080

535

3000
6000

680

1550

550

320

ТТОР 133/219-4,0/1,6

133х6

6000
9000

7260
10260

3000
6000

740

1490

ТТОР 133/219-4,0/4,0

6000
9000

7260
10260

3000
6000

760

1475

ТТОР 159/219-1,6/1,6

159х5

6000
9000

7250
10250

3000
6000

690

1550

ТТОР 159/219-4,0/1,6

159х6

6000
9000

7280
10280

3000
6000

760

1490

ТТОР 159/219-4,0/4,0

6000
9000

7280
10280

3000
6000

780

1475

 

Пример компоновки элементов теплообменника труба в трубе
однопоточного разборного ТТОР в блок

 

Используются технологии uCoz